Z41H,Z45H德标法兰闸阀
Z41H/Z45H德标法兰闸阀适用于PN16-PN64,工作温度-29~425℃(碳钢)及-40~600℃(不锈钢)的名种管路上,用于截断或接通管路中的介质。 通过选用不同的材质,可适用于水、蒸汽、油品、硝酸、醋酸、强氧化性介质及尿素等多种介质。 驱动方式 手动、伞齿轮传动及电动。
|
产品名称: |
德标法兰闸阀 |
产品型号: |
Z41H、Z45H |
|
公称通径: |
DN15~DN800 |
结构形式: |
闸板式 |
|
公称压力: |
PN16-PN64 |
连接方式: |
法兰 |
|
适用温度: |
-20ºC~+150ºC~425ºC~600ºC |
驱动方式: |
手动、伞齿轮、电动、气动、液动 |
|
阀体材质: |
WCB、铸钢、碳钢、锻钢、不锈钢 |
制造标准: |
国标GB、德国DIN、美国API、ANSI |
|
适用介质: |
水、油、蒸汽 |
生产厂家: |
广发体育,广发(中国) |
产品说明
Z41H/Z45H德标法兰闸阀适用于PN16-PN64,工作温度-29~425℃(碳钢)及-40~600℃(不锈钢)的名种管路上,用于截断或接通管路中的介质。 通过选用不同的材质,可适用于水、蒸汽、油品、硝酸、醋酸、强氧化性介质及尿素等多种介质。 驱动方式 手动、伞齿轮传动及电动。
结构特点
1、德标法兰闸阀结构紧凑、设计合理、阀门刚性好、通道流畅,流阻系数小
2、密封面采用不锈钢和硬质合金,适用寿命长。
3、采用柔性石墨填料、密封可靠、操作轻便灵活。
4、驱动方式有:电动、气动、齿轮转动、结构形式:弹型楔式单闸板、刚性楔式单闸板双闸板式
5、水封闸阀广泛用于化工、火力、发电厂等油品、水蒸气管道上作接通或截断管道中介质的启闭装置。
技术规范
|
结构形式 |
BB-BG-OS&Y |
|
驱动方式 |
手动 Hand-operated |
|
电动 Electric-actuated |
|
设计标准 |
DIN3352 |
|
结构长度 |
DIN3202 |
|
连接法兰 |
DIN2543-2547 |
|
试验和检验 |
DIN3230 |
产品性能规范
|
公称压力(MPa) |
壳体实验压力(MPa) |
密封试验压力(MPa) |
适用温度(℃) |
使用介质 |
|
1.6 |
2.4 |
1.76 |
-110~600℃ |
水、蒸汽、油品等 |
|
2.5 |
3.75 |
2.75 |
|
4.0 |
6.0 |
4.4 |
|
6.4 |
9.6 |
7.04 |
主要零件材料及性能
|
壳体 |
GS-C25 |
1.4308 |
|
阀瓣 |
GS-C25 |
1.4308 |
1.4408 |
Monel |
|
阀杆 |
13Cr |
1.4308 |
1.4408 |
Monel |
F304 |
|
阀瓣密封面 |
13Cr |
13Cr |
STL |
1.4308 |
STL |
1.4408 |
STL |
Monel |
1.4308 |
1.4308 |
STL |
|
阀座密封面 |
13Cr |
STL |
STL |
1.4308 |
STL |
1.4408 |
STL |
Monel |
1.4308 |
STL |
STL |
|
壳体 |
1.4408 |
1.4306 |
1.4301 |
|
阀瓣 |
|
|
阀杆 |
1.4408 |
1.4306 |
1.4301 |
|
阀瓣密封面 |
1.4408 |
1.4408 |
STL |
1.4306 |
1.4306 |
STL |
1.4301 |
1.4301 |
STL |
|
阀座密封面 |
1.4408 |
STL |
STL |
1.4306 |
STL |
STL |
1.4301 |
STL |
STL |
|
|
|
|
|
|
|
|
|
|
|
|
|
|
|
|
|
|
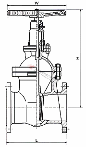
Z41H德标闸阀外形结构图

Z41H-PN16德标闸阀主要连接尺寸
|
压力等级 (MPa) |
PN1.6MPa/F5系列 |
|
口径 |
nn |
50 |
65 |
80 |
100 |
125 |
150 |
200 |
250 |
300 |
350 |
400 |
450 |
500 |
600 |
|
L |
250 |
270 |
280 |
300 |
325 |
350 |
400 |
450 |
500 |
550 |
600 |
650 |
700 |
800 |
|
H |
417 |
452 |
530 |
607 |
720 |
790 |
885 |
1014 |
1190 |
1350 |
1460 |
1630 |
1800 |
2200 |
|
W |
200 |
280 |
280 |
300 |
350 |
350 |
400 |
450 |
500 |
600 |
600 |
650 |
700 |
800 |
|
重量 (Kg) |
16 |
25 |
30 |
55 |
75 |
98 |
150 |
245 |
353 |
490 |
750 |
985 |
1063 |
1390 |
|
|
|
|
|
|
|
|
|
|
|
|
|
|
|
|
|
Z41H-PN25德标闸阀主要连接尺寸
|
压力等级 (MPa) |
PN2.5MPa/F5系列 |
|
口径 |
nn |
50 |
65 |
80 |
100 |
125 |
150 |
200 |
250 |
300 |
350 |
400 |
450 |
500 |
600 |
|
L |
250 |
270 |
280 |
300 |
325 |
350 |
400 |
450 |
500 |
550 |
600 |
650 |
700 |
800 |
|
H |
417 |
452 |
530 |
607 |
720 |
790 |
885 |
1014 |
1190 |
1350 |
1460 |
1630 |
1800 |
2200 |
|
W |
200 |
280 |
280 |
300 |
350 |
350 |
400 |
450 |
500 |
600 |
600 |
650 |
700 |
800 |
|
重量 (Kg) |
16 |
31 |
43 |
58 |
82 |
103 |
180 |
265 |
385 |
547 |
835 |
1050 |
1130 |
1500 |
|
|
|
|
|
|
|
|
|
|
|
|
|
|
|
|
|
Z41H-PN40德标闸阀主要连接尺寸
|
压力等级 (MPa) |
PN4.0MPa/F5系列 |
|
口径 |
nn |
50 |
65 |
80 |
100 |
125 |
150 |
200 |
250 |
300 |
350 |
400 |
450 |
500 |
600 |
|
L |
250 |
290 |
310 |
350 |
400 |
450 |
550 |
650 |
750 |
850 |
950 |
1050 |
1150 |
1350 |
|
H |
404 |
456 |
604 |
607 |
720 |
780 |
875 |
1260 |
1480 |
1605 |
1788 |
1956 |
2168 |
2601 |
|
W |
200 |
280 |
300 |
350 |
350 |
400 |
450 |
500 |
500 |
600 |
650 |
700 |
700 |
800 |
|
重量 (Kg) |
18 |
32 |
47 |
60 |
95 |
130 |
220 |
290 |
490 |
760 |
900 |
1250 |
1450 |
1700 |
|
|
|
|
|
|
|
|
|
|
|
|
|
|
|
|
|
Z41H-PN64德标闸阀主要连接尺寸
|
压力等级 (MPa) |
PN6.4MPa/F5系列 |
|
口径 Size |
nn |
50 |
65 |
80 |
100 |
125 |
150 |
200 |
250 |
300 |
350 |
400 |
450 |
500 |
600 |
|
L |
250 |
290 |
310 |
350 |
400 |
450 |
550 |
650 |
750 |
850 |
950 |
1050 |
1150 |
1350 |
|
H |
404 |
456 |
604 |
607 |
720 |
780 |
875 |
1260 |
1480 |
1605 |
1788 |
1956 |
2168 |
2601 |
|
W |
200 |
280 |
300 |
350 |
350 |
400 |
450 |
500 |
500 |
600 |
650 |
700 |
700 |
800 |
|
重量 (Kg) |
20 |
35 |
52 |
66 |
103 |
140 |
230 |
300 |
510 |
780 |
940 |
1300 |
1600 |
1850 |
|
|
|
|
|
|
|
|
|
|
|
|
|
|
|
|
|
Z45H德标闸阀外形结构图

Z45H-PN16德标闸阀主要连接尺寸
|
力等级 (MPa) |
PN1.6MPa |
|
口径 Size |
nn |
50 |
65 |
80 |
100 |
125 |
150 |
200 |
250 |
300 |
350 |
400 |
|
L |
250 |
270 |
280 |
330 |
360 |
390 |
460 |
530 |
630 |
690 |
750 |
|
H |
305 |
354 |
402 |
437 |
496 |
541 |
699 |
815 |
914 |
1189 |
1350 |
|
W |
200 |
200 |
750 |
250 |
300 |
350 |
400 |
450 |
500 |
550 |
600 |
|
重量 (Kg) |
20 |
30 |
38 |
56 |
75 |
100 |
182 |
278 |
398 |
500 |
618 |
|
|
|
|
|
|
|
|
|
|
|
|
|
|
Z45H-PN25德标闸阀主要连接尺寸
|
压力等级 (MPa) |
PN2.5MPa |
|
口径 Size |
nn |
50 |
65 |
80 |
100 |
125 |
150 |
200 |
250 |
300 |
350 |
400 |
|
L |
250 |
270 |
280 |
330 |
360 |
390 |
460 |
530 |
630 |
690 |
750 |
|
H |
325 |
363 |
415 |
453 |
505 |
556 |
744 |
864 |
948 |
1269 |
1450 |
|
W |
200 |
200 |
250 |
300 |
350 |
400 |
450 |
500 |
550 |
600 |
600 |
|
重量 (Kg) |
20 |
30 |
39 |
58 |
80 |
101 |
190 |
290 |
405 |
510 |
650 |
|
|
|
|
|
|
|
|
|
|
|
|
|
|
Z45H-PN40德标闸阀主要连接尺寸
|
压力等级 (MPa) |
PN4.0MPa |
|
口径 Size |
nn |
50 |
65 |
80 |
100 |
125 |
150 |
200 |
250 |
300 |
350 |
400 |
|
L |
250 |
270 |
280 |
330 |
360 |
390 |
460 |
530 |
630 |
690 |
750 |
|
H |
325 |
370 |
430 |
480 |
532 |
589 |
783 |
888 |
965 |
1285 |
1512 |
|
W |
200 |
200 |
250 |
300 |
350 |
400 |
450 |
500 |
550 |
600 |
600 |
|
重量 (Kg) |
20 |
31 |
41.5 |
61 |
83 |
110 |
210 |
318.5 |
430 |
520 |
680 |
|
|
|
|
|
|
|
|
|
|
|
|
|
|
声明:【Z41H,Z45H德标法兰闸阀】规格型号、结构尺寸由广发体育,广发(中国)提供,如何选择适用的Z41H,Z45H德标法兰闸阀产品,使之在工艺控制中安全可靠、经济适用,可致电我司销售部门及技术部门,我们将在最短的时间内为您解答! |