
Q41PPL导热油高温球阀
Q41PPL导热油高温球阀本公司设计整体高温球阀是采用新型密封材料为阀座,经同类产品聚四氟乙烯做密封的球阀,使用寿命提高了3-5倍。具有性能稳定、密封可靠、磨擦力小、开关轻便、耐高温、耐磨、耐油、耐腐蚀、使用寿命长等优点,“剑阀”牌高温球阀与截止阀、柱塞阀、排污阀,结构长度相符,扩大了球阀使用范围,广泛用于石油、化工、橡胶、造纸、制药等行业,可替代截止阀、柱塞阀、快速排污阀。适用介质:水、蒸汽、导热油等酸类,使
| 产品名称: | 导热油高温球阀 | 产品型号: | Q41PPL |
| 公称通径: | DN15~DN300 | 结构形式: | 球形 |
| 公称压力: | 1.6Mpa~2.5Mpa | 连接方式: | 法兰 |
| 适用温度: | ≤350ºC | 驱动方式: | 手动 |
| 阀体材质: | 铸钢、不锈钢 | 制造标准: | 国标GB、德国DIN、美国API、ANSI |
| 适用介质: | 水、油、气体、液体 | 生产厂家: | 广发体育,广发(中国) |
|
型号 |
公称压力 |
强度试验压力 |
密封试验压 |
适用温度 |
适用介质 |
|
Q41PPL-16P |
1.6 |
2.4 |
1.8 |
-28~+300 (M/F) |
导热油、水、蒸汽、气体、油品、硝酸类腐蚀性介质、醋酸类腐蚀性介质 |
|
Q41PPL-25P |
2.5 |
3.8 |
2.8 |
-28~+350 (PPL) |
|
序号 |
零部件名称 |
材料 |
|
1 |
阀体 |
球墨铸铁、碳素钢、铸不锈钢 |
|
2 |
密封圈 |
(M/F)高强度耐磨碳结石墨≤300℃ (PPN)对莅聚苯、温度≤350℃ |
|
3 |
球 |
不锈钢 |
|
4 |
填料 |
聚四氟乙烯 |
|
5 |
填料压盖 |
QT450-10球墨铸铁 |
|
6 |
阀杆 |
碳素钢、铬不锈钢 |
|
7 |
手柄 |
碳钢 |

|
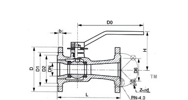
型号 |
规格 |
尺寸 |
||||||
|
L |
D |
D 1 |
D 2 |
z-φd |
H |
b |
||
|
Q41PPL-16 |
15 |
130 |
95 |
65 |
45 |
4-14 |
85 |
14 |
|
20 |
150 |
105 |
75 |
55 |
4-14 |
95 |
16 |
|
|
25 |
160 |
115 |
85 |
65 |
4-14 |
103 |
16 |
|
|
32 |
180 |
135 |
100 |
78 |
4-18 |
105 |
18 |
|
|
40 |
200 |
145 |
110 |
85 |
4-18 |
120 |
18 |
|
|
50 |
230 |
160 |
125 |
100 |
4-18 |
195 |
20 |
|
|
65 |
290 |
180 |
145 |
120 |
4-18 |
195 |
20 |
|
|
80 |
310 |
195 |
160 |
135 |
8-18 |
215 |
22 |
|
|
100 |
350 |
215 |
180 |
155 |
8-18 |
253 |
24 |
|
结构特点及作用原理:
该型阀门中的球体、密封圈采用了特殊的加工工艺和最新密封材料,使球体表面粗糙度和圆度达到标准要求,从而提高了密封性能和使用寿命、耐高温的能力。
顺时板动手柄带动阀杆驱动球体旋转,使介质顺利通过。
声明:【Q41PPL导热油高温球阀】规格型号、结构尺寸由广发体育,广发(中国)提供,如何选择适用的Q41PPL导热油高温球阀产品,使之在工艺控制中安全可靠、经济适用,可致电我司销售部门及技术部门,我们将在最短的时间内为您解答! |