AVAX自动排气阀
AVAX自动排气阀主要应用于暖通空调系统,往往安装在制高点或弯头等处,以排除管道中多余气体、提高管道路使用效率及降低能耗。并消除气阻,防止水流量减小而引起的冷热不均等现象。
|
产品名称: |
自动排气阀 |
产品型号: |
AVAX |
|
公称通径: |
DN10~DN15~DN20~DN25 |
结构形式: |
浮球式 |
|
公称压力: |
1.6MPa |
连接方式: |
外螺纹 |
|
适用温度: |
-15ºC~+100ºC |
驱动方式: |
自动 |
|
阀体材质: |
黄铜、不锈钢 |
制造标准: |
国标GB、德国DIN、美国API、ANSI |
|
适用介质: |
水、给排水、污水等 |
生产厂家: |
广发体育,广发(中国) |
产品说明
AVAX自动排气阀主要应用于暖通空调系统,往往安装在制高点或弯头等处,以排除管道中多余气体、提高管道路使用效率及降低能耗。并消除气阻,防止水流量减小而引起的冷热不均等现象。
工作原理
当系统中有气体产生时,由于气体的密度比水小,气体会顺着管道向上走,最终聚集在系统的高点,所以自动排气阀一般都安装在系统高点,在这里自动排气阀的排气效率最高。当气体进入自动排气阀阀腔聚集在自动排气阀的上部,随着阀内气体的增多,气体压力上升。当气体压力大于系统压力时,气体会使腔内水面下降,浮筒随水位一起下降,排气口打开开始排气;随着气体排出,气压降低,水位上升,浮筒也随之上升,排气口关闭。
工作原理图

1、当没有气体时,浮子将会上升,机械机构保证销针关闭排气口。
2、当有气体聚集时,浮子下降,销针打开阀门,使气体排出直到气体排尽。
3、当系统中有气体溢出时,气体会顺着管道向上爬,最终聚集在系统的最高点,而自动排气阀一般都安装在系统最高点,当气体进入排气阀阀腔聚集在排气阀的上部,随着阀内气体的增多,压力上升,当气体压力大于系统压力时,气体会使腔内水面下降,浮筒随水位一起下降,打开排气口;气体排尽后,水位上升,浮筒也随之上升,关闭排气口。
4、同样的原理,当系统中产生负压,阀腔中水面下降,排气口打开,由于此时外界大气压力比系统压力大,所以大气会通过排气口进入系统,防止负压的危害。如拧紧自动排气阀阀体上的阀帽,自动排气阀停止排气,通常情况下,阀帽应该处于开启状态。
应用领域
广泛应用于水处理设备、化工设备、石化设备、石油设备、造纸设备、采矿设备、电力设备配套、液化气设备、食品设备、制药设备、给排水设备、市政阀门、机械设备阀门、电子工业阀门,城建阀门、工业管道阀门、通用零部件、工业设备、消防暖通、中央空调、过滤设备、冶金设备、轻纺设备.环保设备等领域。
改进特点
1、普通排气阀无内置过滤网,杂质易堵塞排气嘴,设计不合理,弹簧有疲劳损,时间长了封不严,易漏水。
2、改进型暖气自动排气阀内置过滤网防止杂质进入排气嘴,优质产品的重量是劣质产品质量的2倍。(需订购)
3、质量可靠,性能稳定,一年免费更换,杜绝国产品牌排气又排水的情况产生。
细节说明
 |
 |
|
可拆卸设计:人性化设计,可拆卸,使用更方便。 |
带过滤网设计:带有过滤网,可过滤比较大的杂质,防止杂质阻塞。 |
 |
 |
|
带内外丝接头:可接内外丝弯头,使用更方便。 |
更多选择:多种规格供您选择,保证需求。 |
压力试验
|
公称压力 |
1.0MPa |
|
阀座试验压力 |
1.1MPa |
|
阀体试验压力 |
1.5MPa |
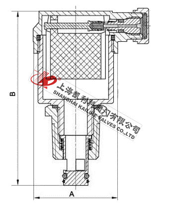
外形结构图
主要外形尺寸
|
产品型号 |
公称通径 |
A |
B |
G |
|
AVAX |
10 |
49 |
87 |
3/8" |
|
AVAX |
15 |
49 |
87 |
1/2" |
|
AVAX |
20 |
49 |
87 |
3/4" |
|
AVAX |
25 |
49 |
87 |
1" |
安装方式
1、自动排气阀必须垂直安装,必须保证阀体内浮筒处于竖直状态,不能水平或倒立安装;
由于气体密度比水小,会沿着管道一直爬到系统最高点并聚集在此,为了提高排气效率,排气阀一般都安装在系统的最高点;
2、为了便于检修,排气阀一般跟隔断阀一起使用,这样拆卸排气阀是不需要关停系统;
暖气排气阀安装好后必须拧松防尘帽才能排气,但不能完全取掉,万一发生排气阀漏水,可拧紧防尘帽。
声明:【AVAX自动排气阀】规格型号、结构尺寸由广发体育,广发(中国)提供,如何选择适用的AVAX自动排气阀产品,使之在工艺控制中安全可靠、经济适用,可致电我司销售部门及技术部门,我们将在最短的时间内为您解答! |