

Q41F铸铁球阀
Q41F铸铁球阀主要用于截断或接通介质,也可用于流体的调节与控制。与其它阀类相比,球阀具优点1、流体阻力小,球阀是所有阀类中流体阻力最小的一种,即使是缩径球阀,其流体阻力也相当小。
| 产品名称: | 铸铁球阀 | 产品型号: | Q41F |
| 公称通径: | DN15~DN300 | 结构形式: | 球形 |
| 公称压力: | 1.6Mpa | 连接方式: | 法兰 |
| 适用温度: | ≤150ºC | 驱动方式: | 手动、电动、气动 |
| 阀体材质: | 铸铁HT200/HT250、球墨铸铁Q235 | 制造标准: | 国标GB、德国DIN、美国API、ANSI |
| 适用介质: | 水、油、蒸汽 | 生产厂家: | 广发体育,广发(中国) |
| 设计与制造 | 结构长度 | 法兰尺寸 | 压力-温度 | 试验-检验 |
| GB122237 | GB12221 | GB9113 JB79 | GB9131 | GB/T13927 JB/T9092 |
| 公称压力NominalPressure | 1.6 |
|
强度试验 Shell Test |
2.4 |
|
水密封试验 Water Seal Test |
1.8 |
|
气密封试验 Air Seal Test |
0.4-0.7 |
|
阀体 Body |
HT200 | Q235 |
|
球体阀杆 Ball Stem |
304 | 1Cr18Ni9Ti |
|
阀座 Seat |
聚四氟乙烯PTFE 加坡纤增强聚四氟乙烯PTFE+Glass 对位聚笨PPL | |
|
垫片 Shim |
聚四氟乙烯PTFE 不锈钢/柔性石墨Stainless Steel/flexible Graphite 齿形垫片Tooth Profile Gasket | |
|
阀杆座 Stem Seat |
聚四氟乙烯PTFE 不锈钢/柔性石墨 Stainless Steel/Flexible Graphite | |
|
填料 Packing |
聚四氟乙烯PTFE 增强柔性石墨 Enhanced Flexible Graphite | |
|
温度 Temperature |
-29℃~150℃(聚四氟乙烯 PTFE) -29℃~200℃(加玻纤增强聚四氟乙烯 PTFE+GLASS) | |
|
介质 Medium |
水、蒸汽、油品Water steamOil goods | |
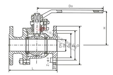
| 1.6MPa | DN | L | D | D1 | D2 | b | n-φd | H | D0 |
| Q41F-16 | 15 | 130 | 95 | 65 | 45 | 14 | 4-14 | 78 | 140 |
| 20 | 140 | 105 | 75 | 55 | 14 | 4-14 | 84 | 160 | |
| 25 | 150 | 115 | 85 | 65 | 14 | 4-14 | 95 | 180 | |
| 32 | 165 | 135 | 100 | 78 | 16 | 4-18 | 150 | 250 | |
| 40 | 180 | 145 | 110 | 85 | 16 | 4-18 | 150 | 300 | |
| 50 | 200 | 160 | 125 | 100 | 18 | 4-18 | 170 | 350 | |
| 65 | 220 | 180 | 145 | 120 | 20 | 4-18 | 195 | 350 | |
| 80 | 250 | 195 | 160 | 135 | 20 | 8-18 | 215 | 400 | |
| 100 | 280 | 215 | 180 | 155 | 20 | 8-18 | 250 | 500 | |
| 125 | 320 | 245 | 210 | 185 | 22 | 8-18 | 265 | 600 | |
| 150 | 360 | 280 | 240 | 210 | 24 | 8-23 | 270 | 800 | |
| 200 | 400 | 335 | 295 | 265 | 26 | 12-23 | 330 | 1200 |
声明:【Q41F铸铁球阀】规格型号、结构尺寸由广发体育,广发(中国)提供,如何选择适用的Q41F铸铁球阀产品,使之在工艺控制中安全可靠、经济适用,可致电我司销售部门及技术部门,我们将在最短的时间内为您解答! |